Verkocht:Hertog Albrechtstraat 289, 1611 GJ Bovenkarspel - Foto
Verkocht
+25

Hertog Albrechtstraat 289 1611 GJ Bovenkarspel

  • Woonhuis
  • 5 kamers
  • 4 slaapkamers
  • 1 badkamers
  • Bouwjaar 1974
  • 160 m² perceeloppervlakte
  • 117 m² gebruiksoppervlakte
  • D Energielabel D

Beschrijving

Stap binnen in deze heerlijk ruime en lichte tussenwoning, waar alles klopt voor comfortabel wonen. De straatgerichte woonkamer vormt het hart van het huis: een plek waar je na een drukke dag tot rust komt en waar je moeiteloos vrienden en familie ontvangt. De tuingerichte eethoek sluit daar perfect op aan – ideaal voor lange avonden tafelen met zicht op je eigen achtertuin.

De open keuken is een fijne plek voor kookliefhebbers: royaal opgezet, voorzien van diverse inbouwapparatuur en volop werkruimte. Hier zet je zonder moeite een driegangendiner op tafel, terwijl je toch in contact blijft met het gezin of je gasten.

De achtertuin is volledig bestraat en daardoor onderhoudsarm, zodat jij vooral kunt genieten. Met een praktische, gemetselde berging voorzien van elektra én een achterom, is ook aan gemak gedacht.

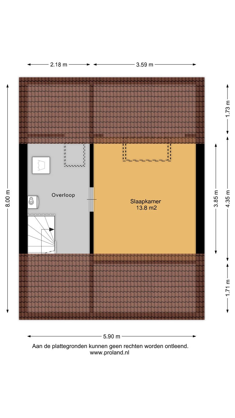
Boven tref je drie ruime slaapkamers en een moderne, volledig betegelde badkamer met wastafelmeubel en inloopdouche. Handig is het aparte toilet op de overloop. Via de vaste trap bereik je de tweede verdieping, waar nog een vierde slaapkamer is gerealiseerd. Hier bevinden zich tevens de aansluitingen voor wasmachine en droger en de cv-opstelling.

Kortom: een complete en instapklare gezinswoning op een fijne locatie, dichtbij alle voorzieningen die Bovenkarspel rijk is.

Bijzonderheden:

- Lichte, straatgerichte woonkamer;
- Tuingerichte eethoek met toegang tot de tuin;
- Royale open keuken met diverse apparatuur;
- Volledig bestraatte achtertuin met berging (v.v. elektra) en achterom;
- 3 slaapkamers op de 1e verdieping;
- Moderne badkamer met inloopdouche en wastafelmeubel;
- Separaat toilet op de overloop;
- 4e slaapkamer op de 2e verdieping;
- Cv-opstelling en wasruimte op zolder;
- Centrale ligging nabij winkels, scholen en station.

Kaart

Kenmerken

Overdracht

Referentienummer
00540
Vraagprijs
€ 325.000,- k.k.
Status
Verkocht
Aanvaarding
In overleg
Aangeboden sinds
Maandag 29 september 2025
Laatste wijziging
Dinsdag 21 oktober 2025

Bouw

Type object
Woonhuis, eengezinswoning, tussenwoning
Soort bouw
Bestaande bouw
Bouwperiode
1974

Oppervlaktes en inhoud

Perceeloppervlakte
160 m²
Woonoppervlakte
117 m²
Inhoud
410 m³
Oppervlakte externe bergruimte
12 m²

Indeling

Aantal bouwlagen
3
Aantal kamers
5 (waarvan 4 slaapkamers)
Aantal badkamers
1 (en 2 aparte toiletten)

Locatie

Ligging
In woonwijk

Tuin

Type
Achtertuin
Tuin 2 - Type
Achtertuin

Energieverbruik

Energielabel
D

Uitrusting

Badkamervoorzieningen
Inloopdouche
Wastafel
Wastafelmeubel
Tuin aanwezig
Ja
Heeft schuur/berging
Ja

Kadastrale gegevens

Kadastrale aanduiding
Stede Broec C 4537
Perceeloppervlakte
160 m²
Omvang
Geheel perceel
Eigendomsituatie
Eigen grond

Brochure(s) en overige bijlagen

Hertog Albrechtstraat 289, 1611 GJ BOVENKARSPEL (1) Download