Koop:Immerhornweg 15-239, 1601 DC Enkhuizen - Foto
+19

Immerhornweg 15-239 1601 DC Enkhuizen € 129.000,- v.o.n.

  • Woonhuis
  • 3 kamers
  • 2 slaapkamers
  • 1 badkamers
  • Bouwjaar 2020
  • 411 m² perceeloppervlakte
  • 60 m² gebruiksoppervlakte
  • Gemeubileerd
  • B Energielabel B

Beschrijving

In de wolken op Europarcs!
(Unter dem Niederländischen text finden Sie die Deutsche Übersetzung.)

De dagelijkse hectiek ontvluchten en genieten van de rust op het vakantiepark van Europarcs. Enkhuizen, de oude VOC stad heeft u veel te bieden. Het gezellige oude centrum met haar haven, restaurants en NS station.

Het park grenst direct aan het IJsselmeer en aan het alom bekende Sprookjeswonderland, het overdekte zwembad en het Zuiderzeemuseum met het buitenmuseum. Het jachtige leven gaat compleet aan u voorbij als u in de tuin geniet van zingende vogels en het kabbelend water. Bovendien is er een hippe strandtent geopend!

Het bouwjaar is 2020 – 2021 en daarmee voldoet het aan alle wooneisen van deze tijd. De woning is licht, behaaglijk en door de zonnepanelen en warmtepomp nagenoeg energieneutraal. De woning is tevens voorzien van airconditioning.

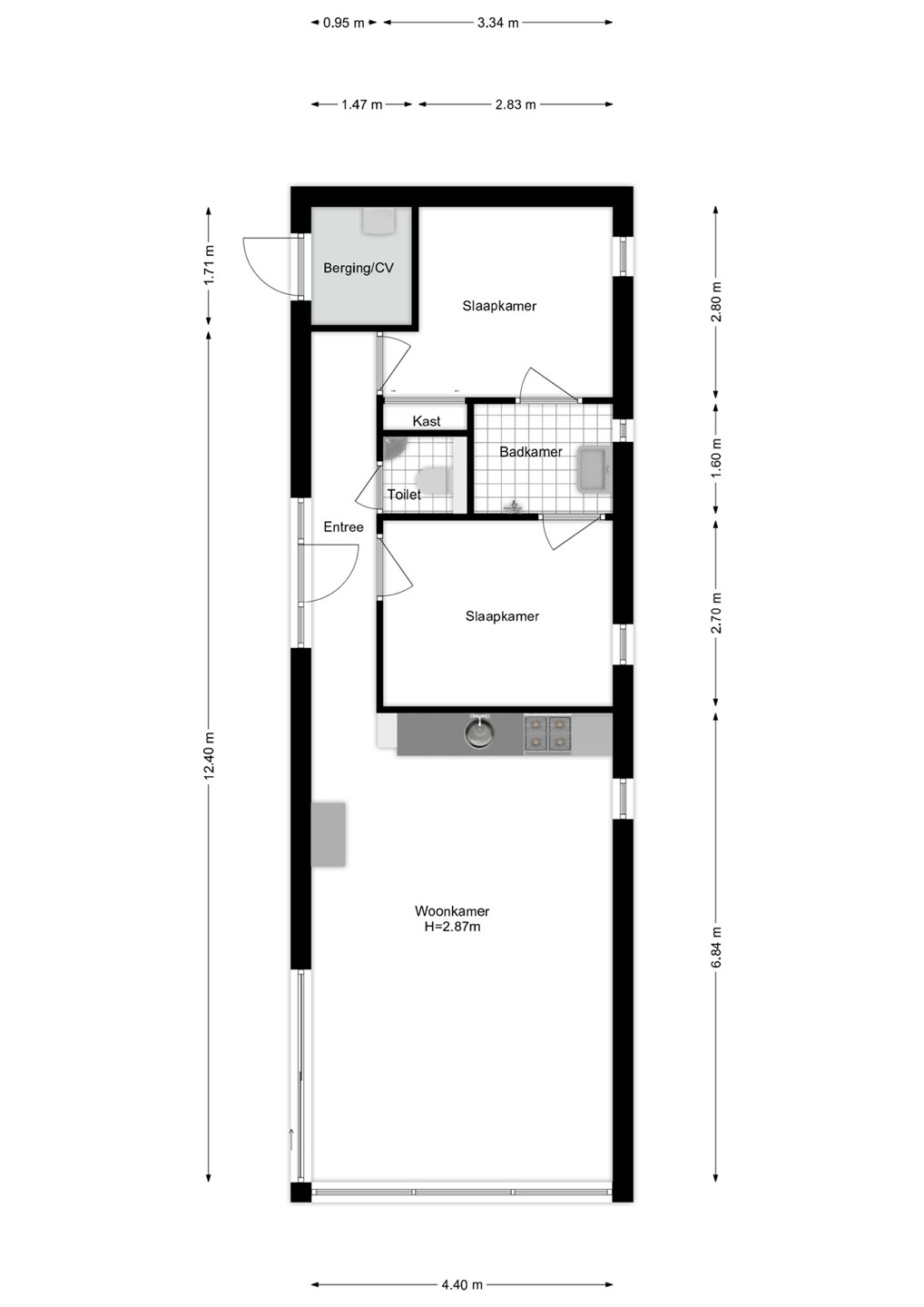
Indeling:
Entree/hal, toilet met fontein, twee slaapkamers, middels badkamer verbonden, badkamer voorzien van douche, wastafel met meubel, woonkamer voorzien van veel daglichttoetreding middels de grote raampartijen, open keuken voorzien van inductiekookplaat, combioven, vaatwasser en spoelbak. Rondom zijn de ramen voorzien van horren en aan de zonkant zijn screens aanwezig.

Frontberging met de warmtepompinstallatie en ruimte voor fietsen.

De woning is inclusief:
- Tuinaanleg;
- Parkeerplaats;
- Volledig gestoffeerd en gemeubileerd

Verhuurregels:
- Je mag de woning zelf verhuren (20% van de huuropbrengsten is dan voor Droomparken);
- Droomparken verhuurt de woning (25% van de huuropbrengsten is dan voor Droomparken);
- Een derde partij verhuurt de woning (30% van de huuropbrengsten is dan voor Droomparken);
- Zelf kunt u de woning gratis bewonen, dit dient u wel af te blokken bij de receptie.
- Het park is voorzien van "hotelservice” d.w.z., een linnenpakket, bedden opmaakservice en schoonmaak.
- Huuropbrengsten op jaarbasis circa € 20.000,=. Met de KOR (Kleine Ondernemers Regeling) kunt u bij omzetten tot EURO 20.000,-- vrijstelling van BTW krijgen (vraag uw belastingadviseur om advies indien u hier gebruik van wenst te maken).

Good-to-know:
Er is alleen sprake van een overdracht van de opstal;
De vraagprijs is een prijs exclusief BTW;
De kavel wordt gehuurd (ca. 8.000 per jaar);
De kavel is separaat te koop (koopsom € 100.000,- exclusief BTW) ;
Parkkosten ca. 2.200 per jaar (exclusief tuinonderhoud).

Bijzonderheden
• Volledig geïsoleerd;
• Bouwjaar 2020 - 2021;
• Woonoppervlakte circa 60m²;
• Inhoud circa 236m³;
• Warm water en verwarming middels warmtepomp;
• Zonnepanelen & airconditioning aanwezig
• Permanente bewoning is niet toegestaan;

Im siebten Himmel bei EuroParcs!

Dem Alltagsstress entfliehen und die Ruhe im Ferienpark von EuroParcs genießen!
Enkhuizen, die alte VOC-Stadt, hat Ihnen viel zu bieten – das charmante historische Zentrum mit seinem Hafen, gemütlichen Restaurants und dem Bahnhof (NS-Station).

Der Park grenzt direkt an das IJsselmeer sowie an das weit bekannte Sprookjeswonderland, das überdachte Schwimmbad und das Zuiderzeemuseum mit seinem beeindruckenden Freilichtmuseum. Das hektische Leben bleibt weit hinter Ihnen, während Sie im Garten den singenden Vögeln und dem sanften Plätschern des Wassers lauschen. Außerdem wurde ein trendiger Strandpavillon eröffnet!

Das Haus wurde 2020–2021 erbaut und erfüllt damit alle modernen Wohnansprüche. Es ist hell, behaglich und dank Solarpaneelen und Wärmepumpe nahezu energieneutral. Zudem verfügt es über eine Klimaanlage.

Aufteilung:

Eingang/Flur, Gäste-WC mit Handwaschbecken, zwei Schlafzimmer mit direkter Verbindung über das Badezimmer, Badezimmer mit Dusche und Waschtisch mit Möbel, heller Wohnraum mit großen Fensterflächen und offener Küche mit Induktionskochfeld, Kombi-Backofen, Geschirrspüler und Spüle.
Alle Fenster sind mit Insektenschutzgittern versehen, und auf der Sonnenseite sind Sonnenschutz-Screens installiert.

Vorderer Abstellraum mit Wärmepumpenanlage und Platz für Fahrräder.

Im Kaufpreis enthalten:

• Gartenanlage
• Eigener PKW-Stellplatz
• Vollständig möbliert und ausgestattet
• Vermietungsregeln:
• Selbstvermietung: 20 % der Mieteinnahmen gehen an Droomparken
• Vermietung über Droomparken: 25 % der Mieteinnahmen gehen an Droomparken
• Vermietung über Drittanbieter: 30 % der Mieteinnahmen gehen an Droomparken
• Eigennutzung ist kostenlos, muss jedoch vorab an der Rezeption angemeldet werden
• Der Park bietet Hotelservice, d. h. Wäschepaket, Bettenservice und Endreinigung
• Jährliche Mieteinnahmen betragen ca. € 20.000.
• Mit der KOR-Regelung (Kleine Unternehmerregelung) kann bei Umsätzen bis € 20.000 eine Mehrwertsteuerbefreiung gelten (bitten Sie Ihren Steuerberater um Auskunft).

Gut zu wissen:

Es handelt sich ausschließlich um die Übertragung des Gebäudes (ohne Grundstück)
Der Kaufpreis versteht sich zuzüglich MwSt.
Das Grundstück wird gepachtet (ca. € 8.000 pro Jahr)
Grundstück ist separat käuflich (Kaufpreis € 100.000 zzgl. MwSt.)
Parkkosten ca. € 2.200 pro Jahr (ohne Gartenpflege)

Besonderheiten:

• Vollständig isoliert;
• Baujahr 2020–2021;
• Wohnfläche ca. 60 m²;
• Rauminhalt ca. 236 m³;
• Warmwasser und Heizung über Wärmepumpe;
• Solarpaneele & Klimaanlage vorhanden;
• Dauerhafte Wohnnutzung nicht gestattet.

Kaart

Kenmerken

Overdracht

Referentienummer
00555
Vraagprijs
€ 129.000,- v.o.n.
Inrichting
Ja
Inrichting
Gemeubileerd
Aanvaarding
Direct
Aangeboden sinds
Vrijdag 23 mei 2025
Laatste wijziging
Woensdag 22 oktober 2025

Bouw

Type object
Woonhuis, bungalow, vrijstaande woning
Soort bouw
Bestaande bouw
Toegankelijkheid
Mindervaliden
Senioren
Bouwperiode
2020
Dakbedekking
Bitumen
Type dak
Platdak
Isolatievormen
Dubbel glas
Volledig geïsoleerd

Oppervlaktes en inhoud

Perceeloppervlakte
411 m²
Woonoppervlakte
60 m²
Inhoud
236 m³
Oppervlakte overige inpandige ruimten
2,5 m²

Indeling

Aantal bouwlagen
1
Aantal kamers
3 (waarvan 2 slaapkamers)
Aantal badkamers
1 (en 1 apart toilet)

Locatie

Ligging
Aan rustige weg

Tuin

Type
Tuin rondom
Hoofdtuin
Ja
Heeft een achterom
Ja
Staat
Normaal

Energieverbruik

Energielabel
B

Uitrusting

Aantal parkeerplaatsen
1
Verwarmingssysteem
Airconditioning
Warmtepomp
Heeft kabel-tv
Ja
Tuin aanwezig
Ja
Beschikt over een internetverbinding
Ja
Heeft schuur/berging
Ja
Heeft een schuifpui
Ja
Heeft zonwering
Ja
Heeft zonnepanelen
Ja

Kadastrale gegevens

Kadastrale aanduiding
Enkhuizen B 3040
Perceeloppervlakte
411 m²
Omvang
Geheel perceel
Eigendomsituatie
Erfpacht
Lasten
€ 8.000,- per jaar

Media

Plattegronden

Brochure(s) en overige bijlagen

Brochure automatisch - Amsterdam - Immerhornweg 15 239 - Enkhuizen (4).pdf Download