Verkocht:Botter 111, 1625 DH Hoorn - Foto
Verkocht
+35

Botter 111 1625 DH Hoorn

  • Woonhuis
  • 5 kamers
  • 4 slaapkamers
  • 1 badkamers
  • Bouwjaar 1976
  • 120 m² perceeloppervlakte
  • 110 m² gebruiksoppervlakte
  • A Energielabel A

Beschrijving

Welkom aan de Botter 111 – een verrassend ruime en goed onderhouden tussenwoning met 8 zonnepanelen, energielabel A, een fijne indeling, zonnige tuin en een royale dakkapel. Deze woning ligt in de geliefde en rustige wijk Risdam, op loopafstand van winkelcentrum De Huesmolen, scholen, sportverenigingen en openbaar vervoer. Ook de binnenstad van Hoorn en uitvalswegen richting de A7 zijn snel te bereiken. Hier woon je in een kindvriendelijke omgeving met alle voorzieningen in de buurt.

Begane grond:
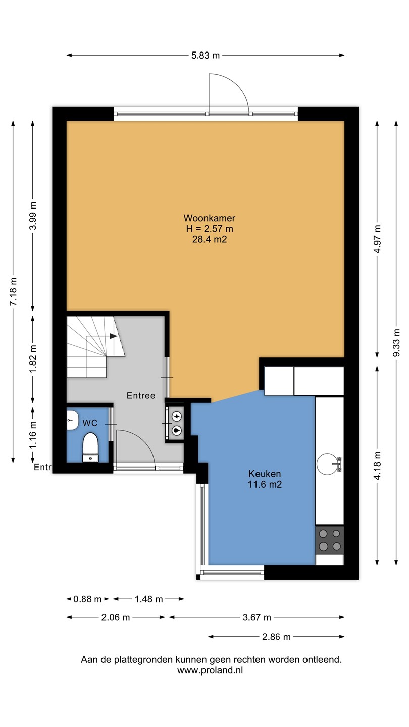
Via de onderhoudsvriendelijke voortuin bereik je de voordeur. Binnenkomend valt meteen de prettige lichtinval op. Aan de voorzijde vind je de ruime woonkeuken met karakteristieke houten keukenopstelling, voldoende kastruimte en plek voor een eettafel. Aan de achterzijde bevindt zich de gezellige woonkamer met zicht op de groene tuin. De woonkamer is voorzien van een fraaie houten vloer en een grote raampartij. Ook is er de hal met toegang tot het toilet.

Eerste verdieping:
Hier bevinden zich drie slaapkamers, elk met eigen sfeer. De grootste slaapkamer ligt aan de achterzijde en beschikt over een vaste kast. De moderne badkamer is strak afgewerkt en voorzien van een inloopdouche, wastafelmeubel en designradiator, op de overloop vind je ook nog het separate toilet.

Tweede verdieping:
Via een vaste trap bereik je de zolderverdieping. De royale dakkapel aan de voorzijde zorgt voor veel extra ruimte en licht. Hier is de vierde slaapkamer. Tevens vind je hier de berging met wasmachineaansluiting en veel bergruimte achter de knieschotten.

Buiten:
De achtertuin ligt op het zuidwesten: ideaal voor zonliefhebbers! Je geniet hier in alle rust van het groen, terwijl de stenen berging handig is voor je fietsen en gereedschap. Via de achterom is de tuin ook bereikbaar.

Bijzonderheden:
- Woonoppervlakte ca. 110 m²;
- Perceeloppervlakte 120 m²;
- Grotendeels voorzien van kunststof kozijnen en dubbel glas;
- Energielabel A;
- 8 zonnepanelen;
- Grote dakkapel voor (kunststof);
- Heerlijke tuin op het zuidwesten met berging en achterom;
- Gelegen nabij winkelcentrum De Huesmolen, scholen, park en uitvalswegen;
- Oplevering kan snel!

Kaart

Kenmerken

Overdracht

Referentienummer
00083
Vraagprijs
€ 365.000,- k.k.
Inrichting
Niet gestoffeerd
Inrichting
Niet gemeubileerd
Status
Verkocht
Aanvaarding
In overleg
Aangeboden sinds
Zaterdag 17 mei 2025
Laatste wijziging
Vrijdag 27 juni 2025

Bouw

Type object
Woonhuis, eengezinswoning, tussenwoning
Soort bouw
Bestaande bouw
Bouwperiode
1976
Dakbedekking
Bitumen
Dakpannen
Type dak
Lessenaarsdak

Oppervlaktes en inhoud

Perceeloppervlakte
120 m²
Woonoppervlakte
110 m²
Inhoud
390 m³
Oppervlakte externe bergruimte
6 m²

Indeling

Aantal bouwlagen
3
Aantal kamers
5 (waarvan 4 slaapkamers)
Aantal badkamers
1 (en 2 aparte toiletten)

Locatie

Ligging
In woonwijk
Nabij school

Tuin

Type
Achtertuin
Oriëntering
Zuid-west
Staat
Goed onderhouden
Tuin 2 - Type
Voortuin

Energieverbruik

Energielabel
A

CV ketel

Warmtebron
Gas
Combiketel
Ja
Eigendom
Eigendom

Uitrusting

Warm water
CV-ketel
Verwarmingssysteem
Centrale verwarming
Badkamervoorzieningen
Inloopdouche
Toilet
Wastafel
Wastafelmeubel
Heeft kabel-tv
Ja
Tuin aanwezig
Ja
Beschikt over een internetverbinding
Ja
Heeft schuur/berging
Ja
Heeft een dakraam
Ja
Heeft zonnepanelen
Ja

Kadastrale gegevens

Kadastrale aanduiding
Hoorn F 4117
Perceeloppervlakte
120 m²
Omvang
Geheel perceel
Eigendomsituatie
Eigen grond

Brochure(s) en overige bijlagen

Botter 111, 1625 DH HOORN (1) Download