Verkocht:Groene Steen 2, 1628 WN Hoorn - Foto
Verkocht
+38

Groene Steen 2 1628 WN Hoorn

  • Woonhuis
  • 5 kamers
  • 4 slaapkamers
  • 1 badkamers
  • Bouwjaar 1996
  • 137 m² perceeloppervlakte
  • 107 m² gebruiksoppervlakte
  • A Energielabel A

Beschrijving

Ben je op zoek naar een woning waar je zó in kunt? Dan is dit je kans! Deze strak afgewerkte, goed onderhouden eengezinswoning ligt op een uitstekende locatie in Hoorn en is volledig instapklaar.

De begane grond is een plaatje: volledig gestuukt en tot in de puntjes afgewerkt. De straatgerichte keuken is voorzien van alle denkbare gemakken – ideaal voor de thuiskok. Vanuit de eethoek loop je door naar de tuingerichte woonkamer met openslaande deuren naar de zonnige achtertuin op het zuiden. Deze is keurig aangelegd en perfect voor wie houdt van een onderhoudsvriendelijke buitenruimte.

Bij binnenkomst valt direct de nette entree op met een modern toilet inclusief fonteintje. Onder de trap vind je een slimme trapkast met een kast-in-kast-systeem – ideaal voor extra opbergruimte.

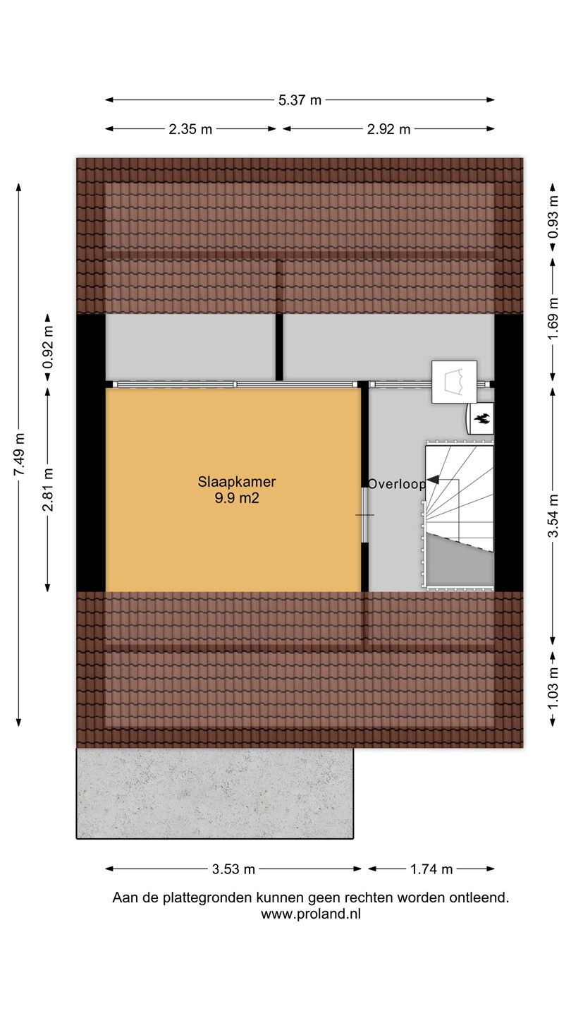
Op de eerste verdieping bevinden zich drie royale slaapkamers en een moderne badkamer met inloopdouche, wastafelmeubel en een tweede toilet. De tweede verdieping is verrassend ruim met een grote vierde slaapkamer en een voorzolder met aansluitingen voor wasmachine en droger.

Indeling:
Begane grond:
Entree/hal, toilet met wandcloset en fontein, meterkast, trapopgang, straatgerichte keuken in L-vorm, eethoek, tuingerichte woonkamer met grote raampartij.

Eerste verdieping:
Ouderslaapkamer aan de voorzijde, volledig betegelde badkamer voorzien van tweede toilet, inloopdouche, wastafel met meubel en designradiator, twee slaapkamers aan de achterzijde.

Tweede verdieping:
Voorzolder met de opstelplaats van de CV ketel en wasmachine-/ drogeraansluitingen, vierde goed bemeten slaapkamer.

Tuin:
Onderhoudsarme achtertuin op het zonnige zuiden, achterin een praktische tuinberging v.v. elektra en een fraaie overkapping.

Bijzonderheden:
• Achtertuin onderhoudsarm;
• 7 zonnepanelen (2024);
• Verbouwing eerste verdieping + vernieuwde elektra (2023);
• Gehele tuin vernieuwd overkapping geplaatst en buitenkant schuur vernieuwd (2022);
• Beneden: Geheel vernieuwd toilet, wanden plafonds gestuukt & geschilderd (2020);
• Echt instapklaar;
• In de directe omgeving zijn alle dagelijkse voorzieningen te vinden, zoals openbaar vervoer, winkels, horeca, goede verbinding tot uitvalswegen en recreatiemogelijkheden;
• Oplevering in overleg.

Kaart

Kenmerken

Overdracht

Referentienummer
00484
Vraagprijs
€ 400.000,- k.k.
Status
Verkocht
Aanvaarding
In overleg
Aangeboden sinds
Vrijdag 9 mei 2025
Laatste wijziging
Vrijdag 4 juli 2025

Bouw

Type object
Woonhuis, eengezinswoning, tussenwoning
Soort bouw
Bestaande bouw
Bouwperiode
1996
Dakbedekking
Dakpannen
Type dak
Samengesteld

Oppervlaktes en inhoud

Perceeloppervlakte
137 m²
Woonoppervlakte
107 m²
Inhoud
380 m³
Oppervlakte externe bergruimte
8 m²
Oppervlakte gebouwgebonden buitenruimte
1 m²

Indeling

Aantal bouwlagen
3
Aantal kamers
5 (waarvan 4 slaapkamers)
Aantal badkamers
1 (en 1 apart toilet)

Locatie

Ligging
In woonwijk

Tuin

Type
Achtertuin
Hoofdtuin
Ja
Oriëntering
Zuiden
Heeft een achterom
Ja
Staat
Prachtig aangelegd
Tuin 2 - Type
Voortuin
Tuin 2 - Oriëntering
Noorden
Tuin 2 - Staat
Goed onderhouden

Energieverbruik

Energielabel
A

Uitrusting

Keukenvoorzieningen
Inbouwapparatuur
Badkamervoorzieningen
Inloopdouche
Toilet
Wastafel
Wastafelmeubel
Tuin aanwezig
Ja
Heeft schuur/berging
Ja

Kadastrale gegevens

Kadastrale aanduiding
Hoorn K 5040
Perceeloppervlakte
137 m²
Omvang
Geheel perceel
Eigendomsituatie
Eigen grond