Nieuw in verkoop:Karveel 43, 1625 ER Hoorn - Foto
Nieuw in verkoop
+38

Karveel 43 1625 ER Hoorn € 425.000,- k.k.

  • Woonhuis
  • 4 kamers
  • 3 slaapkamers
  • 1 badkamers
  • Bouwjaar 1976
  • 183 m² perceeloppervlakte
  • 114 m² gebruiksoppervlakte
  • C Energielabel C

Beschrijving

Instapklare gezinswoning met garage, ruimte om te groeien en alles dichtbij.

In een rustige en kindvriendelijke woonwijk van Hoorn staat deze keurig onderhouden tussenwoning met heerlijke tuin en garage. Een ideale woning voor jonge gezinnen en doorstromers die op zoek zijn naar comfort, ruimte én een praktische ligging met alle voorzieningen binnen handbereik.


Begane grond:
Via de entree stap je binnen in de sfeervolle, straatgerichte eetkamer met een prachtige grote raampartij die zorgt voor volop daglicht en een levendig uitzicht naar buiten. Aansluitend bevindt zich de volledig ingerichte keuken, uitgevoerd met een royaal werkblad en diverse inbouwapparatuur, waaronder een vaatwasser, koelkast, vriezer, oven, magnetron en gaskookplaat. Onder de trap vind je bovendien een praktische bergkast – ideaal voor extra provisie en opslag.

De woning verrast verder met een heerlijk ruime en lichte woonkamer. Dankzij de royale raampartijen en de toegangsdeur naar buiten vloeien binnen en buiten naadloos in elkaar over. Hier geniet je het hele jaar door van een prettige lichtinval en een direct contact met de diepe, zonnige tuin.

Op de begane grond bevindt zich tevens een modern toilet met wandcloset en fonteintje.

Eerste verdieping:
Op de eerste verdieping springt direct de royale slaapkamer aan de achterzijde in het oog. Deze kamer biedt volop ruimte voor een groot bed en extra meubilair en is voorzien van een grote kastenwand, waardoor je hier geniet van optimaal comfort én praktische opbergruimte. De slaapkamer aan de voorzijde is eveneens prettig van formaat en praktisch ingedeeld, met een bergkast en bureau. Wens je liever een extra slaapkamer? Het is eenvoudig mogelijk om de oorspronkelijke indeling terug te brengen en hier weer drie slaapkamers te realiseren.

De badkamer is compleet uitgevoerd met een toilet, wastafelmeubel, douchehoek en een dakraam dat zorgt voor natuurlijke ventilatie en aangenaam daglicht.

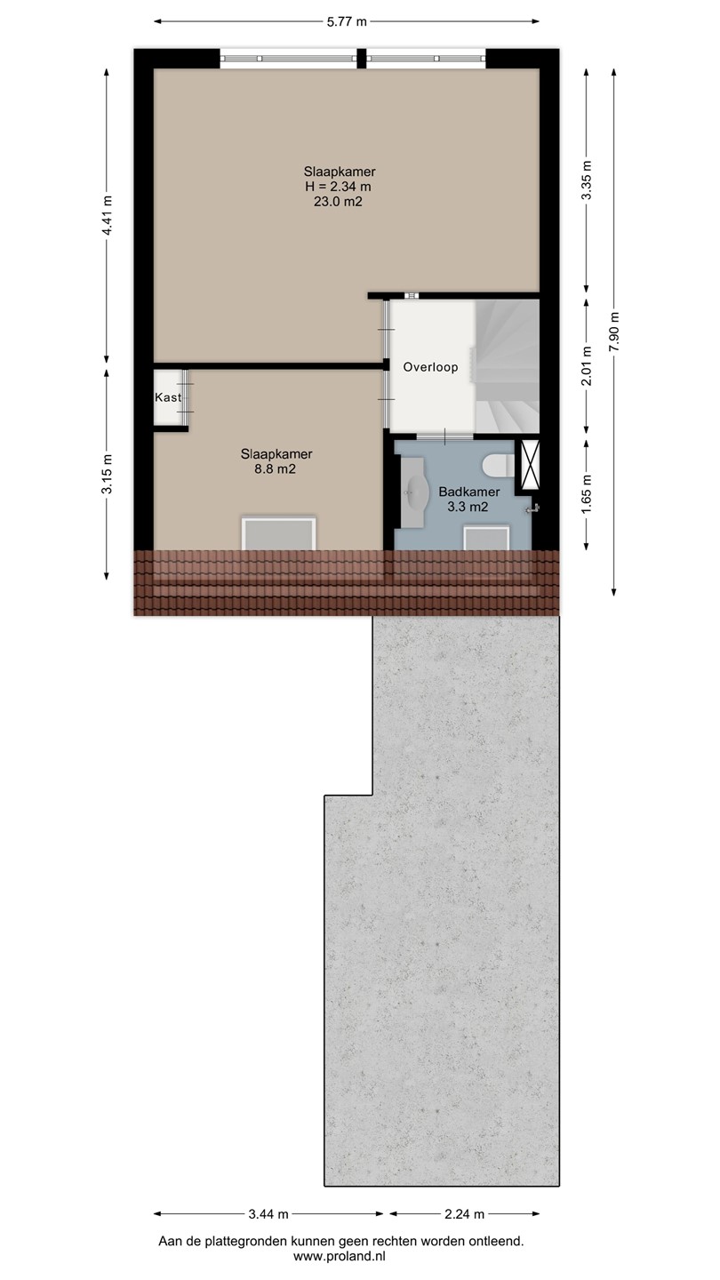
Tweede verdieping:
De tweede verdieping is verrassend ruim en praktisch ingedeeld. Op de royale overloop bevindt zich de CV-opstelling (Nefit, 2019), veel bergruimte en een dakkapel. Dankzij de fijne indeling leent deze ruimte zich uitstekend voor verschillende doeleinden: een comfortabele thuiswerkplek, een rustige studiehoek, een speelplek voor kinderen of zelfs een hobby- of fitnessruimte. Daarnaast is hier een ruime slaapkamer gerealiseerd, eveneens voorzien van een grote dakkapel, wat zorgt voor een prettige lichtinval en extra ruimte. Een volwaardige verdieping met volop mogelijkheden.

Tuin:
De zonnige achtertuin is royaal en groen aangelegd en biedt volop privacy. Met een groene erfafscheiding, een sfeervolle vijver en een elektrisch zonnescherm aan de achtergevel is dit een heerlijke plek om buiten te genieten.

Garage:
Bij de woning hoort een garage voorzien van elektra. Het dak is in 2026 vernieuwd en de garage beschikt over een elektrische, geïsoleerde overheaddeur. Ideaal voor het stallen van een auto, fietsen of als extra opslagruimte.

Verdere bijzonderheden:
- Massieve parketvloer in de woonkamer
- Extra elektriciteitspunten en kraanaansluitingen in tuin en garage;
- Buitenverlichting bij de garagedeur;
- Zonnige achtertuin op het zuidwesten;
- Meranti (hardhouten) voordeur;
- Geïsoleerde zolder;
- Oplevering kan snel.

Scholen, winkels en kinderopvang bevinden zich op korte afstand, net als speelvoorzieningen en uitvalswegen. Ook de binnenstad van Hoorn is snel en eenvoudig bereikbaar.

Een comfortabele, goed onderhouden woning waar je zó in kunt. Plan een bezichtiging en ervaar zelf de ruimte en het woonplezier dat deze woning te bieden heeft.

Kaart

Kenmerken

Overdracht

Referentienummer
00651
Vraagprijs
€ 425.000,- k.k.
Inrichting
Niet gestoffeerd
Inrichting
Niet gemeubileerd
Status
Nieuw in verkoop
Aanvaarding
In overleg
Aangeboden sinds
Woensdag 4 maart 2026

Bouw

Type object
Woonhuis, eengezinswoning, tussenwoning
Soort bouw
Bestaande bouw
Bouwperiode
1976
Dakbedekking
Bitumen
Dakpannen
Type dak
Zadeldak
Isolatievormen
Dakisolatie
Dubbel glas

Oppervlaktes en inhoud

Perceeloppervlakte
183 m²
Woonoppervlakte
114 m²
Inhoud
455 m³
Oppervlakte overige inpandige ruimten
16,4 m²

Indeling

Aantal bouwlagen
3
Aantal kamers
4 (waarvan 3 slaapkamers)
Aantal badkamers
1 (en 1 apart toilet)

Locatie

Ligging
In woonwijk

Tuin

Type
Achtertuin
Tuin 2 - Type
Achtertuin

Energieverbruik

Energielabel
C

CV ketel

Warmtebron
Gas
Combiketel
Ja
Eigendom
Eigendom

Uitrusting

Warm water
CV-ketel
Verwarmingssysteem
Centrale verwarming
Parkeergelegenheid
Aangebouwde stenen garage
Heeft kabel-tv
Ja
Glasvezelaansluiting aanwezig
Ja
Tuin aanwezig
Ja
Heeft een garage
Ja
Telefoonaansluiting aanwezig
Ja
Beschikt over een internetverbinding
Ja
Heeft een dakraam
Ja
Heeft zonwering
Ja

Kadastrale gegevens

Kadastrale aanduiding
Hoorn F 4273
Perceeloppervlakte
173 m²
Omvang
Geheel perceel
Eigendomsituatie
Eigen grond
Kadastrale aanduiding
Hoorn F 5562
Perceeloppervlakte
10 m²
Omvang
Geheel perceel
Eigendomsituatie
Eigen grond

Brochure(s) en overige bijlagen

Karveel 43, 1625 ER HOORN (1) Download