Verkocht:Kinderbalk 40, 1628 MD Hoorn - Foto
Verkocht
+42

Kinderbalk 40 1628 MD Hoorn

  • Woonhuis
  • 4 kamers
  • 3 slaapkamers
  • 1 badkamers
  • Bouwjaar 1987
  • 159 m² perceeloppervlakte
  • 110 m² gebruiksoppervlakte
  • A Energielabel A

Beschrijving

Welkom aan de Kinderbalk 40, een heerlijke gezinswoning op een prachtige locatie in Hoorn. Deze ruime tussenwoning biedt alles wat je zoekt: een lichte woonkamer, moderne keuken, drie volwaardige slaapkamers, een zonnige tuin met overkapping én een fijne ligging dichtbij groen en water.

Indeling

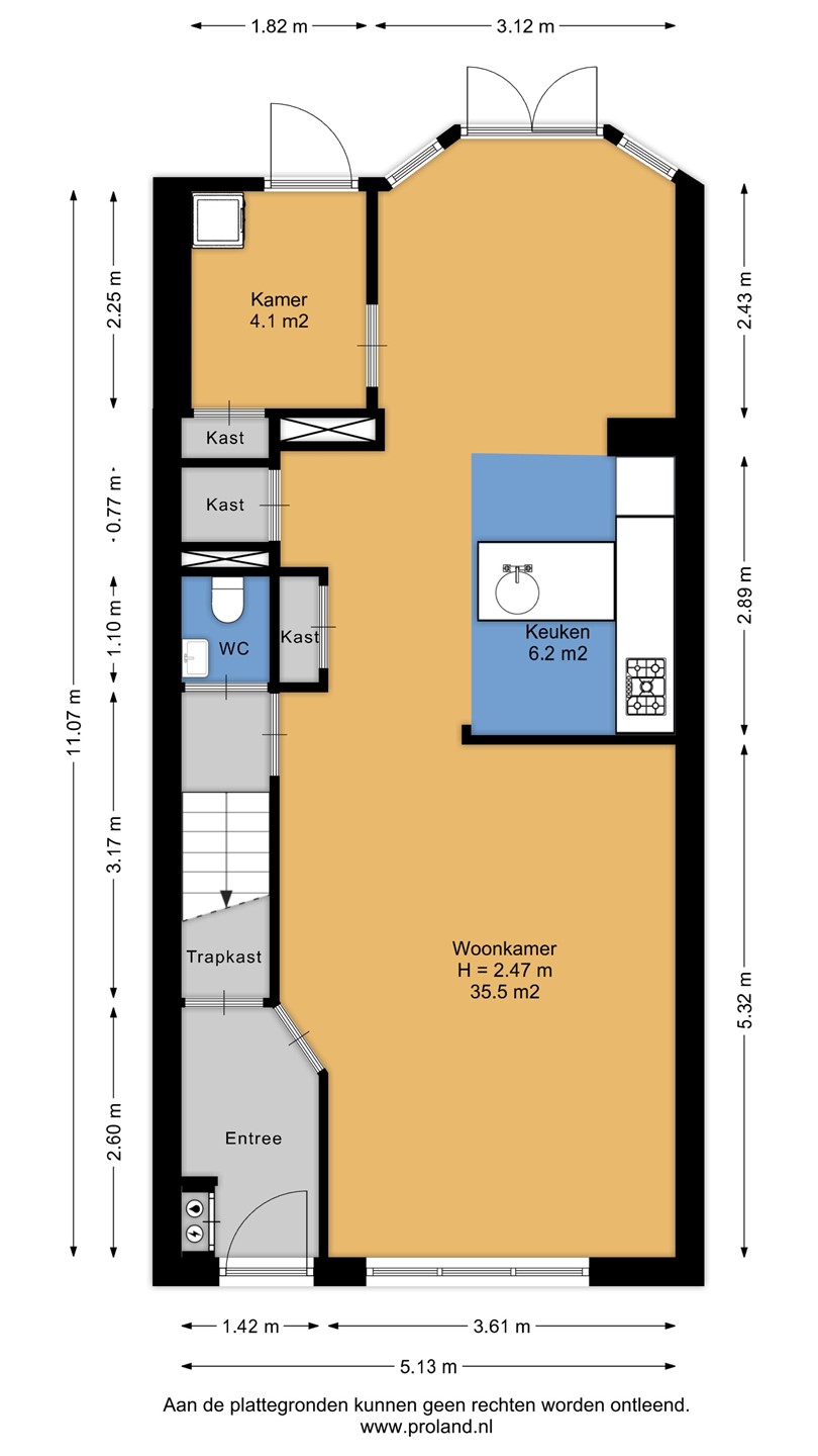
Begane grond
Via de entree met meterkast en trapkast stap je de straatgerichte woonkamer binnen. Dankzij de grote raampartijen geniet je hier van een fijne lichtinval en een prettige leefruimte. De open keuken is voorzien van diverse inbouwapparatuur en sluit perfect aan op de royale tuingerichte eetkamer in de uitgebouwde achterzijde van de woning. Hier is het heerlijk vertoeven: het daklicht zorgt voor extra veel licht en via de dubbele openslaande deuren stap je zo de tuin in.
Grenzend aan de eetkamer vind je de praktische bijkeuken met aansluitingen voor wasmachine en droger, plus een extra loopdeur naar buiten. Het toilet bevindt zich in de hal bij de trapopgang.

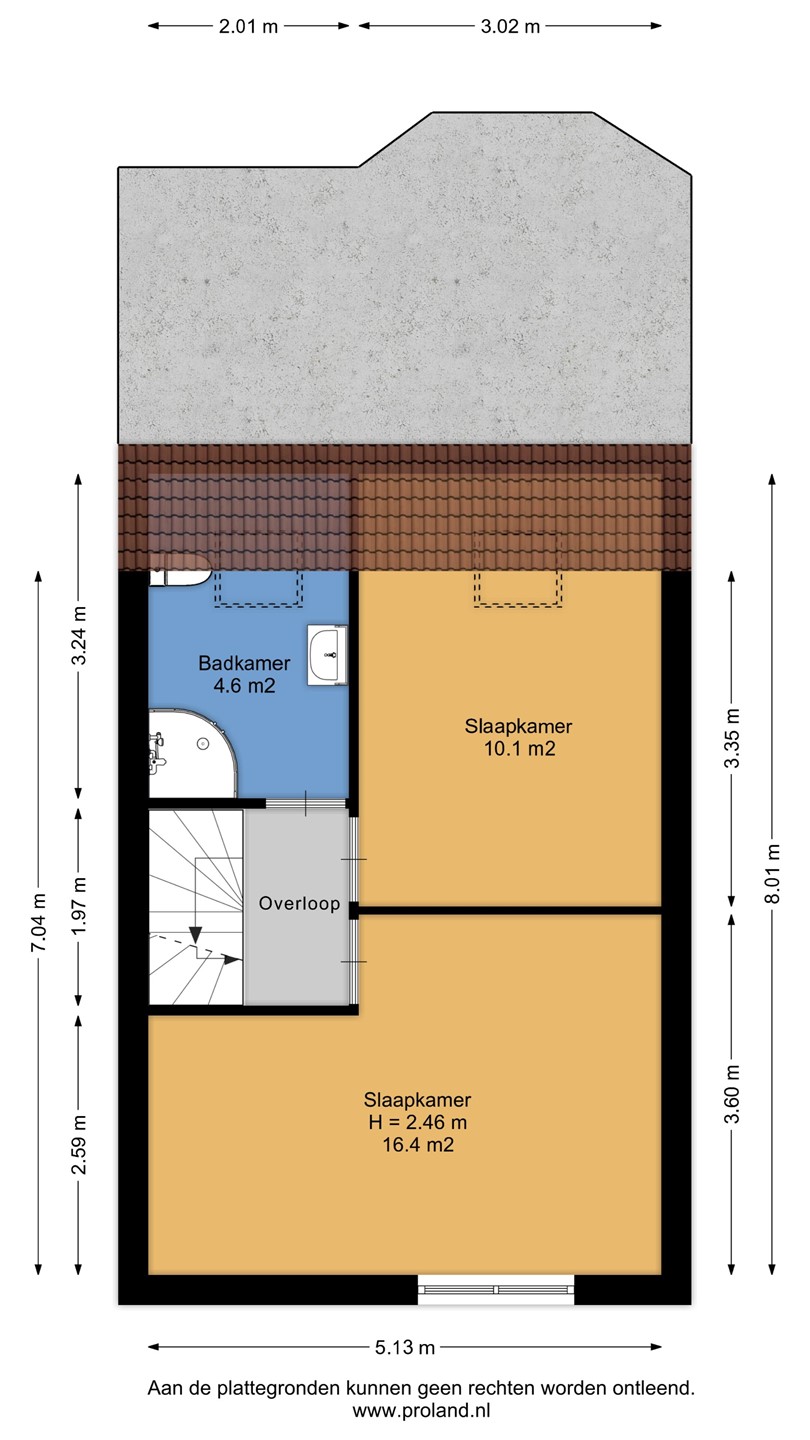
Eerste verdieping
Op de eerste verdieping zijn er twee ruime slaapkamers en een nette badkamer met toilet, wastafelmeubel en douchecabine.

Tweede verdieping
De zolderverdieping is bereikbaar via een vaste trap. Op de overloop staat de CV-ketel opgesteld en vind je de derde slaapkamer met twee dakramen, waardoor de ruimte lekker licht is.

Tuin

De achtertuin is diep, zonnig en onderhoudsvriendelijk aangelegd met een combinatie van sierbestrating, gras en kleurrijke borders. Achterin tref je een gezellige overkapping waar je ’s zomers tot in de late uurtjes buiten kunt zitten. Ook is er een gemetselde berging en een achterom die direct toegang geeft tot de parkeerplaats achter de woning – hier is altijd voldoende plek voor de auto!

Bijzonderheden:
- Gelegen in een fijne, groene woonomgeving nabij water, speelvoorzieningen, scholen en winkels;
- Uitgebouwde gezinswoning;
- Vloerverwarming begane grond;
- Energielabel A;
- Diepe, zonnige achtertuin met veranda;
- Groenrijke omgeving met wandelpark;
- Nabij dagelijkse voorzieningen;
- 3 slaapkamers; 4 mogelijk;
- Oplevering in overleg.

Kaart

Kenmerken

Overdracht

Referentienummer
00511
Vraagprijs
€ 375.000,- k.k.
Inrichting
Niet gestoffeerd
Inrichting
Niet gemeubileerd
Status
Verkocht
Aanvaarding
In overleg
Aangeboden sinds
Maandag 6 oktober 2025
Laatste wijziging
Woensdag 29 oktober 2025

Bouw

Type object
Woonhuis, eengezinswoning, tussenwoning
Soort bouw
Bestaande bouw
Bouwperiode
1987
Dakbedekking
Dakpannen
Type dak
Zadeldak
Isolatievormen
Dubbel glas
Volledig geïsoleerd

Oppervlaktes en inhoud

Perceeloppervlakte
159 m²
Woonoppervlakte
110 m²
Inhoud
364 m³
Oppervlakte externe bergruimte
6 m²

Indeling

Aantal bouwlagen
3
Aantal kamers
4 (waarvan 3 slaapkamers)
Aantal badkamers
1 (en 1 apart toilet)

Locatie

Ligging
Aan rustige weg
Dichtbij openbaar vervoer
In woonwijk
Nabij school

Tuin

Type
Voortuin
Oriëntering
Zuid-west
Staat
Goed onderhouden
Tuin 2 - Type
Achtertuin
Tuin 2 - Hoofdtuin
Ja
Tuin 2 - Oriëntering
Noord-oost
Tuin 2 - Heeft een achterom
Ja
Tuin 2 - Staat
Goed onderhouden

Energieverbruik

Energielabel
A

CV ketel

CV ketel
Intergas
Warmtebron
Gas
Bouwjaar
2012
Combiketel
Ja
Eigendom
Eigendom

Uitrusting

Warm water
CV-ketel
Elektrische boiler
Verwarmingssysteem
Centrale verwarming
Vloerverwarming (gedeeltelijk)
Ventilatie methode
Mechanische ventilatie
Keukenvoorzieningen
Inbouwapparatuur
Spoeleiland
Badkamervoorzieningen
Douche
Toilet
Wastafelmeubel
Heeft kabel-tv
Ja
Glasvezelaansluiting aanwezig
Ja
Tuin aanwezig
Ja
Heeft schuur/berging
Ja
Heeft een dakraam
Ja
Heeft ventilatie
Ja

Kadastrale gegevens

Kadastrale aanduiding
Hoorn L 2088
Perceeloppervlakte
159 m²
Omvang
Geheel perceel
Eigendomsituatie
Eigen grond

Brochure(s) en overige bijlagen

Kinderbalk 40, 1628 MD HOORN (1) Download