Koop:Leemhorststraat 92, 1624 NM Hoorn - Foto
+32

Leemhorststraat 92 1624 NM Hoorn € 750.000,- k.k.

  • Appartement
  • 3 kamers
  • 1 badkamer
  • Bouwjaar 2019
  • 108 m² gebruiksoppervlakte
  • A Energielabel A

Beschrijving

In de luxe woontoren "de Toren van Hoorn" mogen we je halverwege de toren, op de tiende verdieping, dit ruime drie kamer appartement met flink balkon aanbieden. Vanuit de woning is er prachtig en uniek uitzicht op de lieve skyline van Hoorn. Zo zijn onder andere schouwburg "Het Park", station Hoorn, de Koepelkerk en het Markermeer te bewonderen. De ligging is daarnaast ook nog eens zeer gunstig ten opzichte van uitvalswegen, openbaarvervoer en de gezellige binnenstad.

INDELING
Begane Grond:
De luxe centrale entree mét huismeester geeft direct aan dat dit niet zomaar een woontoren is. Hier leeg je de brievenbus en neem je één van de twee liften naar de appartementen.

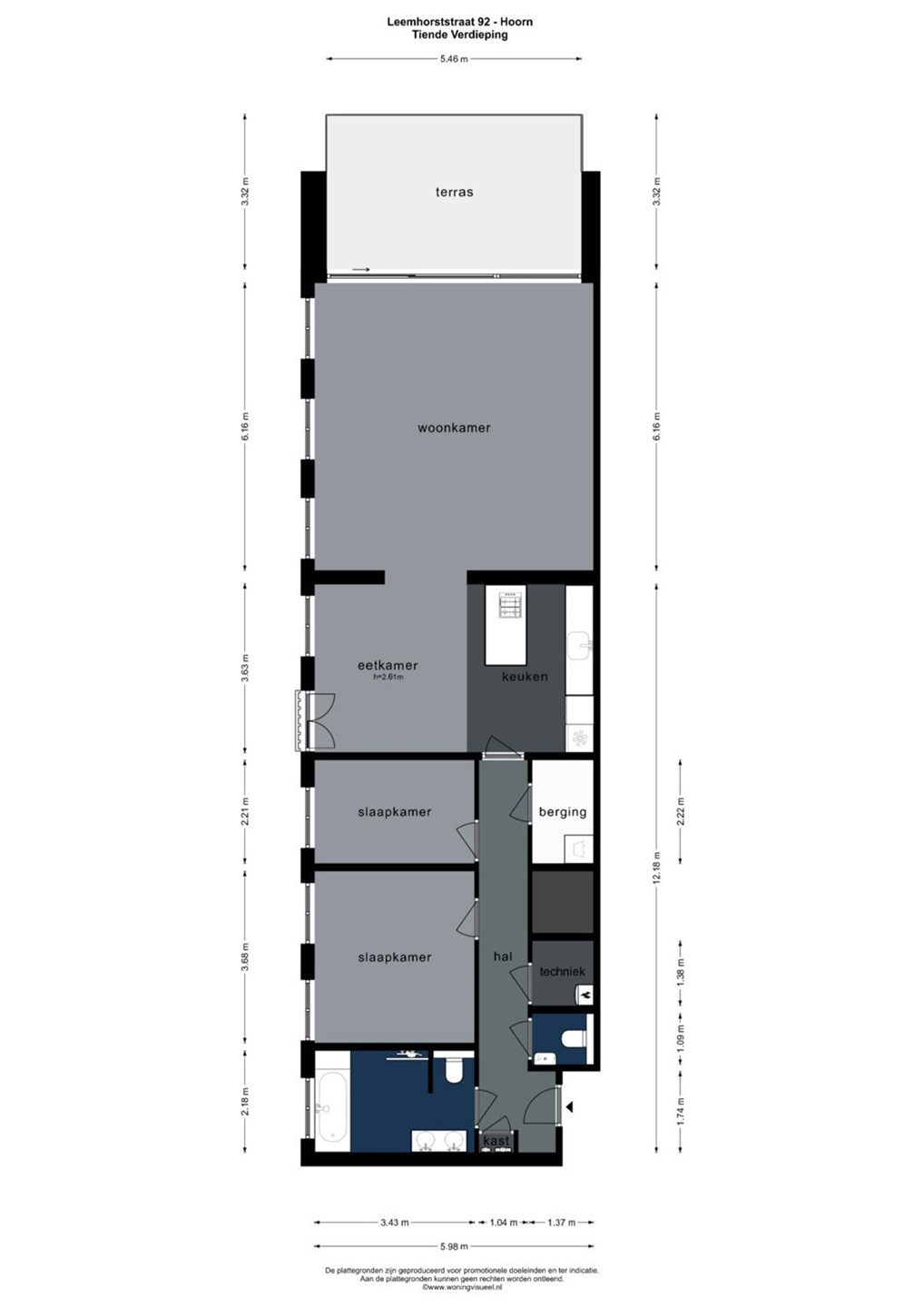
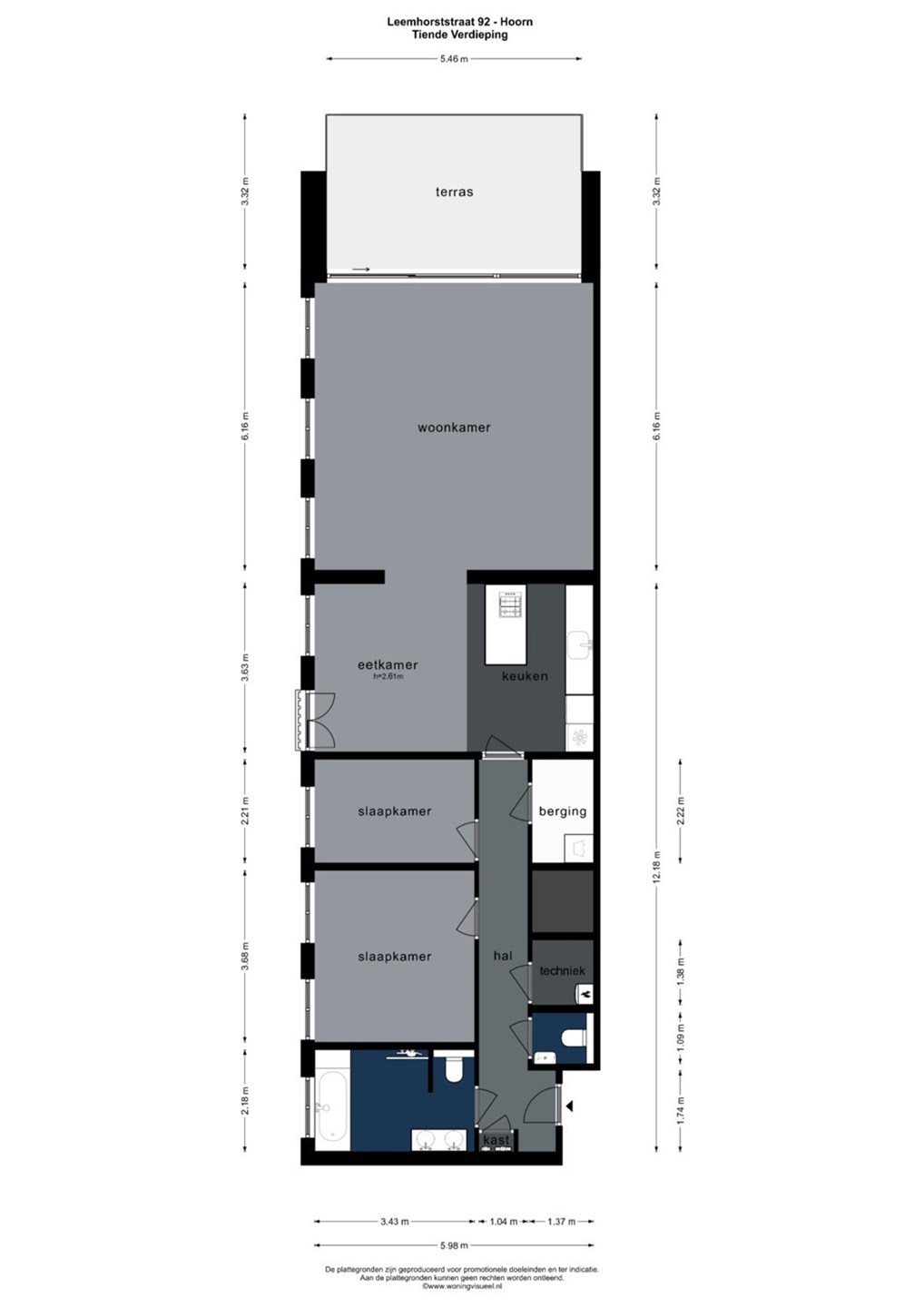
Tiende verdieping:
Entree via de ruime hal, vanuit hier toegang tot alle vertrekken.
De prachtige grote glasoppervlakten in de living geven veel licht aan de ruimte, maar bovenal een subliem uitzicht over Hoorn en haar Markermeer. Het ruime terras van ca. 18 m2 geeft extra ruimte om na een drukke dag te ontspannen en te genieten.
De woonkeuken is voorzien van een kastenwand in combinatie met een schiereiland. Alle denkbare apparatuur is aanwezig te wetende: inductie kookplaat met kookplaatafzuiging, combi-oven, kokend water kraan, vaatwasser en een koelvriescombinatie.
Het appartement heeft twee goed bemeten slaapkamers. De keurige badkamer is uitgevoerd met een ligbad, inloopdouche en een dubbele wastafel met meubel. Tevens is er een berging met aansluiting voor de wasmachine en/of droger. De gehele verdieping is bijna overal voorzien van een moderne, stijlvolle vloer met vloerverwarming en -koeling.

Parkeerkelder:
In de parkeerkelder vind je jouw eigen parkeerplaats en een berging (ca. 5m2) voorzien van elektra.
Tevens is er in de parkeerkelder een gemeenschappelijke fietsenstalling aanwezig.

BIJZONDERHEDEN:
• Bouwjaar: 2019;
• Energielabel A;
• Woonoppervlakte ca. 108 m²;
• Inhoud ca 355 m³;
• Vloerverwarming- en koeling;
• Aanwezigheid van een huismeester;
• Ruime privé berging in de onderbouw;
• Gezamenlijke stalling voor fietsen en scooters op de begane grond;
• Actieve Vereniging van Eigenaars, maandelijkse bijdrage ca. € 215,48 per maand (appartement en berging).
• Parkeerplaats in afgesloten garage;
• Oplevering in overleg.

Kaart

Kenmerken

Overdracht

Referentienummer
00117
Vraagprijs
€ 750.000,- k.k.
Aanvaarding
In overleg
Aangeboden sinds
Maandag 21 oktober 2024
Laatste wijziging
Donderdag 4 september 2025

Bouw

Type object
Appartement, bovenwoning
Soort bouw
Bestaande bouw
Bouwperiode
2019
Type dak
Samengesteld
Isolatievormen
Volledig geïsoleerd

Oppervlaktes en inhoud

Woonoppervlakte
108 m²
Inhoud
355 m³
Oppervlakte gebouwgebonden buitenruimte
18 m²

Indeling

Aantal bouwlagen
1
Aantal kamers
3
Aantal badkamers
1

Locatie

Ligging
In centrum
Vrij uitzicht

Energieverbruik

Energielabel
A

Uitrusting

Warm water
Elektrische boiler
Verwarmingssysteem
Vloerverwarming
Warmtepomp
Ventilatie methode
Balansventilatie
Badkamervoorzieningen
Dubbele wastafel
Inloopdouche
Ligbad
Vloerverwarming
Wastafelmeubel
Parkeergelegenheid
Parkeerkelder
Heeft een balkon
Ja
Heeft kabel-tv
Ja
Heeft een lift
Ja
Heeft schuur/berging
Ja
Heeft een schuifpui
Ja

Kadastrale gegevens

Kadastrale aanduiding
Hoorn D 7759
Omvang
Appartementsrecht of complex
Eigendomsituatie
Eigen grond
Kadastrale aanduiding
Hoorn D 7759
Omvang
Geheel perceel
Eigendomsituatie
Eigen grond