Verkocht:Van Goghhof 79, 1628 XK Hoorn - Foto
Verkocht
+30

Van Goghhof 79 1628 XK Hoorn

  • Woonhuis
  • 5 kamers
  • 4 slaapkamers
  • 1 badkamers
  • Bouwjaar 2000
  • 191 m² perceeloppervlakte
  • 129 m² gebruiksoppervlakte
  • B Energielabel B

Beschrijving

Let op, de genoemde vraagprijs betreft een bieden vanaf prijs!

Op zoek naar een royale hoekwoning met garage, uitbouw en een moderne afwerking? Dan is deze woning aan de Van Goghhof 79 in Hoorn absoluut het bekijken waard! Gelegen in een rustige en kindvriendelijke woonomgeving, met scholen, winkels en uitvalswegen binnen handbereik, biedt deze woning alles voor jarenlang woonplezier.

Indeling

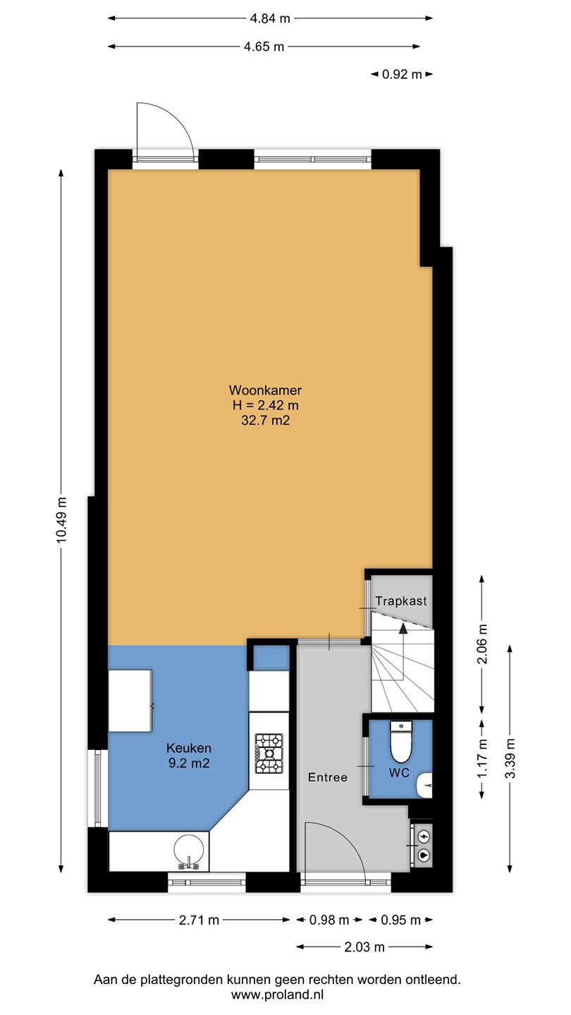
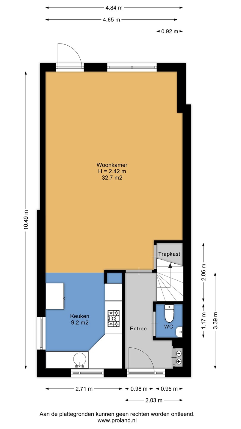
Begane grond
Via de entree bereik je de uitgebouwde woonkamer, die dankzij de extra ruimte aan de voorzijde heerlijk licht en ruim aanvoelt. De gehele begane grond is voorzien van een stijlvolle PVC vloer in visgraatmotief, wat zorgt voor een moderne uitstraling. De nette keuken aan de voorzijde is uitgerust met diverse inbouwapparatuur zoals een combi-oven, vaatwasser en gaskookplaat.

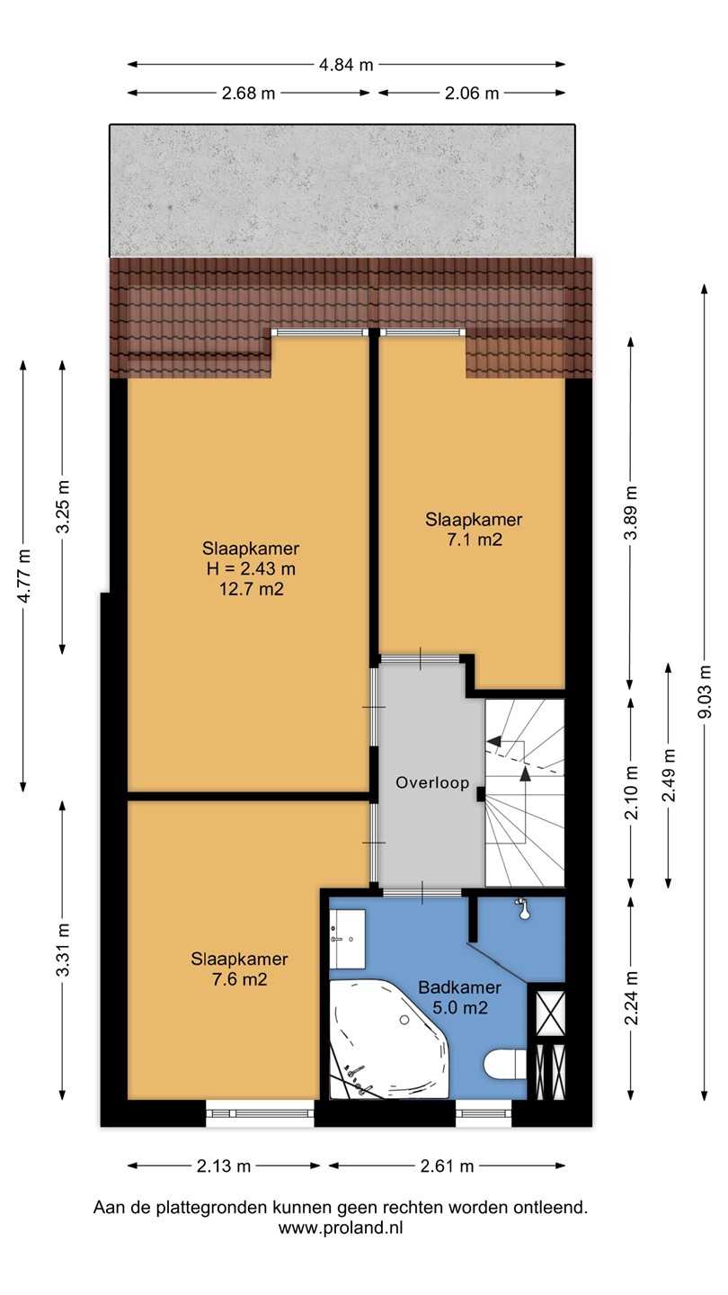
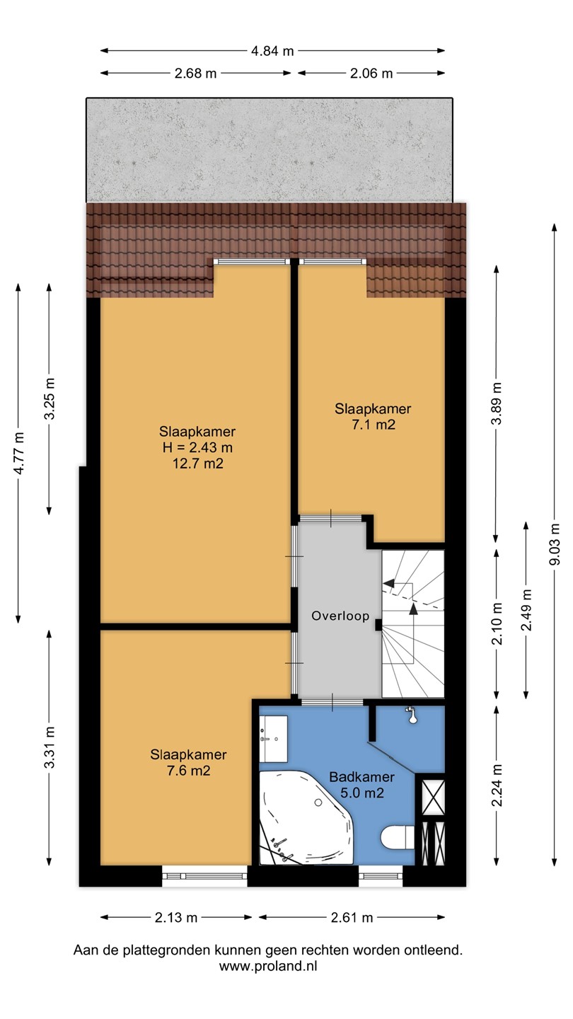
Eerste verdieping
Hier tref je drie slaapkamers (twee voorzien van dakkapel) en één thans in gebruik is als kastenkamer. De badkamer is gelegen aan de voorzijde en beschikt over een whirlpool, een inloopdouche, wandcloset en een wastafel met meubel.

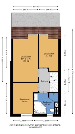
Tweede verdieping
Via een vaste trap bereik je de ruime tweede verdieping. De overloop biedt plek voor de technische installatie en veel bergruimte. Daarnaast is hier een royale vierde slaapkamer gerealiseerd, voorzien van een dakkapel en veel daglichttoetreding.

Tuin
De woning beschikt over een fijne achtertuin waar je de hele dag door kunt genieten van de zon, met achterom én een garage, ideaal voor extra bergruimte of hobby’s. Dankzij de hoekligging geniet je hier van net dat beetje extra privacy.

Bijzonderheden:
- Hoekwoning met garage en achterom;
- Uitgebouwde woonkamer;
- Stijlvolle PVC vloer in visgraatmotief;
- 4 slaapkamers, waarvan 3 met dakkapel;
- Airconditioning aanwezig op de eerste verdieping;
- Moderne badkamer met inloopdouche;
- Achterkant woning geheel voorzien van elektrische zonwering o.a. door middel van een rolluik;
- Rustige en kindvriendelijke woonomgeving;
- Inlite tuinverlichting rondom de tuin;
- De motor van de whirlpool is defect;
- Kortom, een complete gezinswoning met veel ruimte en mogelijkheden. Maak snel een afspraak voor een bezichtiging en laat je verrassen door de ruimte en het wooncomfort dat deze woning te bieden heeft!

Kaart

Kenmerken

Overdracht

Referentienummer
00640
Vraagprijs
€ 450.000,- k.k.
Inrichting
Niet gestoffeerd
Inrichting
Niet gemeubileerd
Status
Verkocht
Aanvaarding
In overleg
Aangeboden sinds
Vrijdag 7 november 2025
Laatste wijziging
Dinsdag 13 januari 2026

Bouw

Type object
Woonhuis, eengezinswoning, hoekwoning
Soort bouw
Bestaande bouw
Bouwperiode
2000
Dakbedekking
Bitumen
Dakpannen
Type dak
Zadeldak
Isolatievormen
Ankerloze spouwmuren
Driedubbel glas
Muurisolatie
Vloerisolatie

Oppervlaktes en inhoud

Perceeloppervlakte
191 m²
Woonoppervlakte
129 m²
Inhoud
325 m³
Oppervlakte externe bergruimte
16 m²

Indeling

Aantal bouwlagen
3
Aantal kamers
5 (waarvan 4 slaapkamers)
Aantal badkamers
1 (en 1 apart toilet)

Locatie

Ligging
Aan rustige weg
Dichtbij openbaar vervoer
In woonwijk
Nabij school

Tuin

Type
Achtertuin
Hoofdtuin
Ja
Oriëntering
Noord west
Staat
Prachtig aangelegd
Tuin 2 - Type
Zijtuin
Tuin 2 - Oriëntering
West
Tuin 2 - Staat
Prachtig aangelegd
Tuin 3 - Type
Voortuin
Tuin 3 - Oriëntering
Zuiden
Tuin 3 - Staat
Prachtig aangelegd

Energieverbruik

Energielabel
B

CV ketel

CV ketel
Intergas
Warmtebron
Gas
Combiketel
Ja
Eigendom
Eigendom

Uitrusting

Warm water
CV-ketel
Verwarmingssysteem
Airconditioning
Hete luchtverwarming
Ventilatie methode
Mechanische ventilatie
Badkamervoorzieningen
Inloopdouche
Ligbad
Toilet
Wastafel
Wastafelmeubel
Parkeergelegenheid
Vrijstaande stenen garage
Heeft airco
Ja
Heeft kabel-tv
Ja
Tuin aanwezig
Ja
Heeft een garage
Ja
Beschikt over een internetverbinding
Ja
Heeft rolluiken
Ja
Heeft een dakraam
Ja
Heeft zonwering
Ja
Heeft ventilatie
Ja

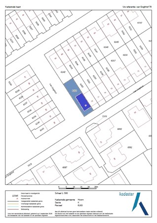
Kadastrale gegevens

Kadastrale aanduiding
Hoorn K 6163
Perceeloppervlakte
191 m²
Omvang
Geheel perceel
Eigendomsituatie
Eigen grond