Nieuw in verkoop:Breed 8, 1679 WC Midwoud - Foto
Nieuw in verkoop
+25

Breed 8 1679 WC Midwoud € 345.000,- k.k.

  • Woonhuis
  • 5 kamers
  • 4 slaapkamers
  • 1 badkamers
  • Bouwjaar 1978
  • 143 m² perceeloppervlakte
  • 114 m² gebruiksoppervlakte
  • C Energielabel C

Beschrijving

In Midwoud, aan Breed 8, staat deze keurige hoekwoning met zij-entree, gelegen op een fijne woonlocatie en met de achtertuin aan het water. Je parkeert gemakkelijk in de omgeving en loopt via de zijentree de woning binnen in de bijkeuken, waar je direct de wasmachine- en drogeraansluitingen aantreft. Vanuit hier bereik je de keuken in L-opstelling, voorzien van koelkast, 5-pits gaskookplaat, vaatwasser en combi-oven. Er is voldoende ruimte voor een eethoek en vanuit de keuken loop je door naar de tuingerichte woonkamer. Deze is lekker licht en beschikt over een sfeervolle houtkachel die ter overname wordt aangeboden.
Bij de trapopgang naar de verdieping bevindt zich de verbeterde toiletruimte met wandcloset en fontein.

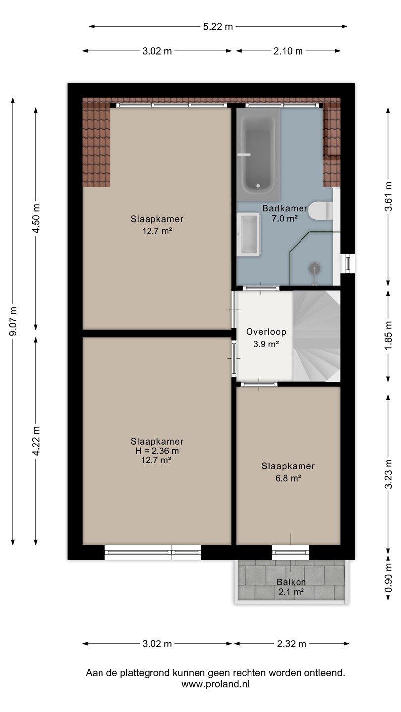
Op de eerste verdieping biedt de overloop toegang tot drie slaapkamers. Eén slaapkamer beschikt over een klein balkon en één slaapkamer is uitgevoerd met een dakkapel. Ook de badkamer heeft een dakkapel en is compleet ingericht met ligbad, douchecabine en wastafelmeubel. In een nis is nu een praktische plek gecreëerd voor de weegschaal.

Via een vaste trap bereik je de tweede verdieping. Hier tref je de voorzolder met 4-pans dakraam en de opstelplaats van de Intergas cv-ketel, alsmede de vierde slaapkamer met groot dakraam en veel bergruimte achter de knieschotten.

De achtertuin is volledig bestraat, onderhoudsarm en gelegen aan het water. Hier vind je een berging voorzien van water en elektra en een afsluitbare achterom.

De woning is verder grotendeels voorzien van dubbel glas (met uitzondering van de bovenlichtjes boven de deuren) en beschikt over 10 zonnepanelen, wat bijdraagt aan lagere energielasten. Kortom: een complete hoekwoning met vier slaapkamers, tuin aan het water en een praktische indeling. Klaar voor een nieuwe eigenaar.

Kaart

Kenmerken

Overdracht

Referentienummer
00661
Vraagprijs
€ 345.000,- k.k.
Inrichting
Niet gestoffeerd
Inrichting
Niet gemeubileerd
Status
Nieuw in verkoop
Aanvaarding
In overleg
Aangeboden sinds
Dinsdag 13 januari 2026

Bouw

Type object
Woonhuis, eengezinswoning, hoekwoning
Soort bouw
Bestaande bouw
Bouwperiode
1978
Dakbedekking
Dakpannen
Type dak
Zadeldak
Isolatievormen
Grotendeels dubbel glas

Oppervlaktes en inhoud

Perceeloppervlakte
143 m²
Woonoppervlakte
114 m²
Inhoud
405 m³
Oppervlakte externe bergruimte
8 m²
Oppervlakte gebouwgebonden buitenruimte
2 m²

Indeling

Aantal bouwlagen
3
Aantal kamers
5 (waarvan 4 slaapkamers)
Aantal badkamers
1 (en 1 apart toilet)

Locatie

Ligging
Aan water
In woonwijk

Tuin

Type
Achtertuin
Oriëntering
West
Staat
Goed onderhouden
Tuin 2 - Type
Voortuin
Tuin 2 - Oriëntering
Oosten
Tuin 2 - Staat
Goed onderhouden
Tuin 3 - Type
Zijtuin
Tuin 3 - Oriëntering
Noorden
Tuin 3 - Staat
Goed onderhouden

Energieverbruik

Energielabel
C

CV ketel

CV ketel
Intergas
Warmtebron
Gas
Combiketel
Ja
Eigendom
Eigendom

Uitrusting

Warm water
CV-ketel
Verwarmingssysteem
Centrale verwarming
Houtkachel
Ventilatie methode
Mechanische ventilatie
Badkamervoorzieningen
Douche
Dubbele wastafel
Ligbad
Toilet
Wastafelmeubel
Heeft kabel-tv
Ja
Heeft een rookkanaal
Ja
Tuin aanwezig
Ja
Telefoonaansluiting aanwezig
Ja
Beschikt over een internetverbinding
Ja
Heeft schuur/berging
Ja
Heeft een dakraam
Ja
Heeft zonwering
Ja
Heeft zonnepanelen
Ja
Heeft ventilatie
Ja

Kadastrale gegevens

Kadastrale aanduiding
Medemblik M 418
Perceeloppervlakte
143 m²
Omvang
Geheel perceel
Eigendomsituatie
Eigen grond